
RIBA CPD Provider
Stair Nosings I Flooring Accessories I Flooring Transitions

RIBA CPD Provider
Tim Hayes
Specification Manager
Support
Product Manager
David Vennard
Samples Manager
Environmental Management Systems ISO
Munro Instruments
Quantum Flooring Accessories is the leading independent stair nosing and accessories manufacturer in the UK, with over 60 years of experience. It supplies a complete range of stair nosings, entrance mattings, flooring accessories and transitions. These can be used in conjunction with all types of floorcoverings, whether contract or domestic.
Based in Oldham in Lancashire, the company manufactures and supplies its products for use throughout the UK and Worldwide. Safety is of paramount concern, with Quantum products offering complete solutions that minimise risk to the end user.
In the UK, supplies of stair nosing profiles and entrance matting are supported by the unique Quantum Flooring Measure Service. Rapid and accurate step measurements are transmitted electronically to the flooring contractor as part of a responsive service package, saving time and money for the floor-fitter.
As part of its commitment to protect the environment and improve the manufacturing process Quantum Flooring Accessories is ISO14001 and ISO9001 accredited. A Carbon Reduction Roadmap is also available, outlining the company's sustainable practices.
Stair nosing
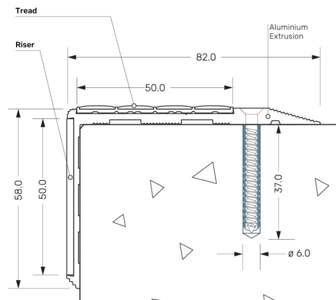
The Q-Range offers a selection of 39 special profiles. This unique Stair Nosing design is suitable for installation in all categories of public and commercial buildings. The Quantum Flooring Solutions patented all-over tread, which provides a slip resistant surface from the nose to the back
edge, gives the benefit of extra safety when ascending or descending stairs. The satin etched aluminium riser surface provides the double benefit of being scratch resistant and also inhibits the potential for ‘glare’, which is one of the requirements of the latest BS 8300-2:2018 and Building Regulations* guidelines applicable to stairs in areas of
Public Access
Durable aluminium Stair Nosings designed for use in a wide range of commercial and industrial applications where slim gauge floorcoverings such as vinyl or lino are specified. Options of lipped and ramped back edge profiles are safety features which reduce the risk of tripping – useful in educational and healthcare locations.
Offering a thicker gauge than the S-Range, the H-Range of Stair Nosings is available with durable aluminium carrier channel options. They can be used in most commercial applications including offices, retail, leisure, education and healthcare. Their thicker gauge enables them to be fitted
with a wide variety of textured floorcoverings, such as carpet and carpet tiles from most leading manufacturers.
This special range of aluminium Stair Nosings comprises a selection of popular cost-effective profiles for a wide range of commercial applications including offices, retail, leisure, education and healthcare. This range has been developed to respond to the demand for a best value solution for a competitive market place. Available with the full choice of tread colours.
This selection of flexible PVC profiles can be used when a quick and/or temporary fitting of a Stair Nosing is required. They are supplied preboxed and are easily cut and trimmed on-site where they can be fitted without waiting for fully cut and drilled measured Stair Nosings. They can also be curved around gentle radii without templating, and are priced to give good value. However, they do not have the durability of the more rigid aluminium or uPVC based Stair Nosings, and are best used in light trafficked conditions, or for short term applications. When used in light
foot trafficked conditions, selected flexible PVC Stair Nosings can also offer Building Regulation best practice solutions.
The Ecoglo tread material option offers an innovative solution to stair safety. In areas of reduced light, Ecoglo tread will illuminate the step edge using a unique photoluminescent material. The photoluminescent strip is combined with a silicon carbide band to increase slip resistance.
The photoluminescent strip can be charged by both natural and artificial light so is suitable for both internal and external installations. See p.37 for photoluminescent charging times. More information is available at: quantumflooring.co.uk search for 'Ecoglo'.
Flooring Accessories
These profiles are used in conjunction with each other to allow for the floorcovering to be continued up the wall for a neat and clean finish in wet and sanitised areas. The Cove Former is installed at the junction between the wall and the floor. This creates a hidden curved support for the floorcovering as it is formed over the junction and up the wall. A Capping Strip is installed where the floorcovering ends, providing a neat and sealed finish to the installation. Capping Strips are available in flexible PVC, rigid uPVC
and also aluminium, enabling them to be fitted with a wide range of floorcovering gauges. They are available in a number of colours to complement floorcovering colour options.
Combined Cove–Capping profiles (CCF1 & CCF2) offer good value options for commonly specified finishes.
Installed on top of the flooring, this range of flexible skirtings offers easy to fit options to cover the join between wall and floor. Generally Sit-On Skirtings are used with hard floorcoverings such as vinyl and lino,
and typical application areas include schools and public buildings. They are available in a number of different sizes and colours
The Q60 SOC and Q100 SOC profiles are supplied in 32 m coils which enable on-site trimming and a reduction in the number of joins along a corridor length.
Set-In Skirtings also cover up the join between floor and wall, but have the additional feature of being welded to the vinyl or lino flooring material. The sealed join ensures that they can be used in areas which are often wet through cleaning as the weld also inhibits bacterial growth.
Consequently Set–In Skirtings are typically to be found in hospitals, clinics and schools. Weld Rod in 80 m coils is a available in a range of complementary colours
Flooring Transitions
Ramp Trims are used to take the edge of an installed floorcovering down to the base residual flooring. They protect the floor material edge and reduce the risk of the junction becoming a trip hazard.
Different ramp back heights accommodate a range of floorcovering gauges. Diminishing Strips are protective edge trims which help to create a safe transition at floorcovering edges. When used underneath a flooring material they increase the gauge to match up to an adjacent thicker material or accessory.
PVC Cover Joints are positioned between vinyl edges where they cover the joints in a subfloor to reduce the risk of the main floorcovering cracking or splitting. They are not a full expansion joint, but they do help to maintain and protect the floorcovering in a safe condition.
PVC Trims are single profiles that are secured to the residual floor and adjoining floorcoverings are fixed in place up to either side of the profile. The Quantum Flooring Solutions Shower Threshold is usually positioned
under the floorcovering at entrances to wet areas, providing an effective barrier which reduces the escape of surface water from the area. Surface fitting is also possible.
Dementia Friendly Transitions provide the perfect solution for joining different floorcoverings together or as a door bar. A uPVC channel with separate tread insert are both available in a range of colours to meet the guidelines set out by the Dementia Services Development Centre (DSDC)
at Stirling University. These give specifiers the options they need to select a safe transition profile between floorcovering joints where there should be very little tonal difference. Supplied pre-drilled and taped.
LVT Transitions are available in 2 finishes: silver satin and chrome polished, to complement your LVT. They are supplied pre-drilled with countersunk screw holes.
The TopClip range from Quantum Flooring Solutions is a two-pieceproduct suitable for use in all commercial and public situations (including hospitals and schools). TopClip can now fit across an even greater range of height differences at floorcovering joints, due to the redesigned clip-in top profiles which are securely accepted into the base sections. TopClip can now form a neat, safe and durable junction between practically any variation of different floorcoverings. The slip resistant Tops are available in 24 colours to complement any design scheme and are easy to clip-in and fit on-site, plus uPVC bases can also be curved on-site. (Please note: QTC60R Tops cannot be curved on-site.)
Tops can be replaced so that the colour can be altered as part of a refurbishment programme, or if a worn or damaged section needs to be changed without renewing the base or disrupting the fitted floorcovering.
Entrance matting
Industry research has shown that 94 % of all dirt that enters a building is brought in on the soles of shoes
or by wheeled traffic. This dirt creates a health and safety issue due to the increased risks of slips, trips or
falls. By specifying the correct type of entrance matting this risk can be significantly reduced.
Quantum Flooring Solutions offers a range of Entrance Matting, which can be ordered through Quantum Distributors. A free on-site measuring service is available, QSMS, which means that once a Quantum Entrance Mat is specified, the product will be made to the correct size, and will fit when delivered to site.
Surface Mounted High-Performance Stair Nosing (Internal or External) - Stair Nosing
HPN1 84 x 55 mm Recessed High-Performance Stair Nosing (Internal or External) - Stair Nosing
HPN2 55mm x 55mm Recessed High-Performance Stair Nosing. (Internal or external) - Stair Nosing - Stair Nosing
Q-Range Duo Stair Nosings / Stair Edging 55 x 55 mm - Stair nosing
EDUCATION - CARDIFF UNIVERISTY - STAIR NOSINGS
FACTORY - ROBINSONS BREWERY - STAIR NOSINGS
RESIDENTIAL - HADRIAN’S TOWER, NEWCASTLE - STAIR NOSING
WAREHOUSE - PROJECT TRIATHLON - STAIR NOSING AND CAP & COVE
Colour & LRV Data Sheet 2025
Recessed Stair Nosings Specification Catalogue 2024
Flooring Accessories Product Datasheet 2025
Stairways & Stair Nosings - Building Regulations & Stairways Explained 2025
A Good Value Visit: An Introduction to the Principles of LEAN
Detailing Floor Finishes - Specification and Detailing Essentials for Stairs, Ramps and Transitions in Floor Finishes
Step on It: Specification of Entrance Matting
Step on it! How Stair Nosings Help to make Stairways Safe & BRE Compliant