You are viewing content for United Kingdom.

Choose a country to see content for your location. Changing region will navigate you to the homepage.

NBS Source
I'm a manufacturer

Trump Green Infant School

OVERVIEW

REQUIREMENT:

When a disabled student was set to join for the new school year, ramped access to the reception classroom became a top priority. 

The school chose our modular ramp for its lightning-fast, 24-hour installation, rain or shine. Unlike a concrete ramp, which needs days to cure, our solution was ready in no time—efficient, reliable, and weather-resistant.

Plus, we ensured full compliance with Parts M and K of the Building Regulations, ensuring the highest safety standards were met.

DESIGN PHASE:

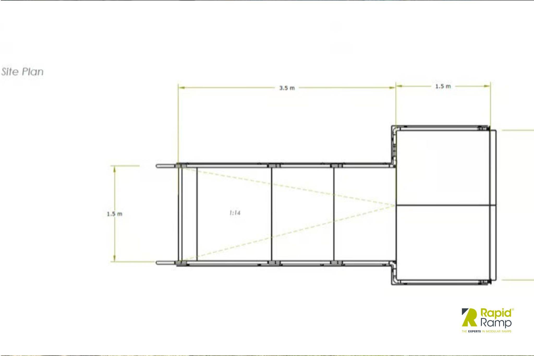
Our in-house design team produced a detailed 3D model and 2D plan, providing the business manager with comprehensive visualisations of the project. These were included with their quotation.

INSTALLATION:

The ramp was installed by our fitters in just one day during the summer holiday, minimising disruption and ensuring there was no impact on the school timetable when students returned.

A key advantage of our product’s modular design is its adaptability. If the door layout changes in the future, the ramp can be easily reconfigured to fit the new arrangement.

In contrast, traditional materials such as concrete and timber are single-use solutions that cannot be adjusted. Once dismantled, they are often discarded and sent to landfill, making a modular system a more sustainable and versatile option.

FEATURES INCLUDED:

  • Looped Trombone Ends – Prevents clothes from snagging at the ends.
  • Slip-resistant Mesh Platform - A multi-directional walkway with self-draining steel mesh and a galvanised finish.
  • Anti-climbing Infill Handrail - Prevents users from climbing or falling through gaps.
  • Continuous Handrail - Provides unbroken support for users to hold onto.
  • Standard Colour: Black - Powder-coated black finish for greater durability than traditional paint.
  • Adjustable Telescopic Legs - Adaptable to various threshold heights.
  • Slip-Resistant Yellow Stair Nosings - Enhances visibility of system edges and level changes for users with impaired vision.
  • Safetread Rubber Crumb Surface - This soft, slip-resistant surface effectively reduces the impact of falls. Made from the same materials used in soft play areas, it is perfect for nurseries, schools, and public facilities. Additionally, it is available in a variety of colours and maintains its performance in all weather conditions.
  • Solid Hoarding - Designed to prevent unauthorised access underneath the system, commonly used in public building projects such as schools.

Products featured in this case study

View all products (11)
Fully Compliant DDA Modular Ramp

Fully Compliant DDA Modular Ramp

Modular School Ramp

Modular School Ramp

More inspiration from Rapid Ramp Limited

View inspiration
Conquest Hospital, St Leonards-on-Sea

Conquest Hospital, St Leonards-on-Sea

Weigh Cabin Platform & Steps, Birmingham

Weigh Cabin Platform & Steps, Birmingham

Bognor Regis, West Sussex

Bognor Regis, West Sussex

Coca-Cola Enterprises, Wakefield

Coca-Cola Enterprises, Wakefield

More inspiration from Heavy steel stair systems

View inspiration
Lincoln Cathedral, Lincoln

Lincoln Cathedral, Lincoln

Palmarsh Primary School, Hythe

Palmarsh Primary School, Hythe

Newcastle United Football Club

Newcastle United Football Club

Cramlington Town FC, Northumberland

Cramlington Town FC, Northumberland