You are viewing content for United Kingdom.

Choose a country to see content for your location. Changing region will navigate you to the homepage.

NBS Source
I'm a manufacturer

Weigh Cabin Platform & Steps, Birmingham

OVERVIEW

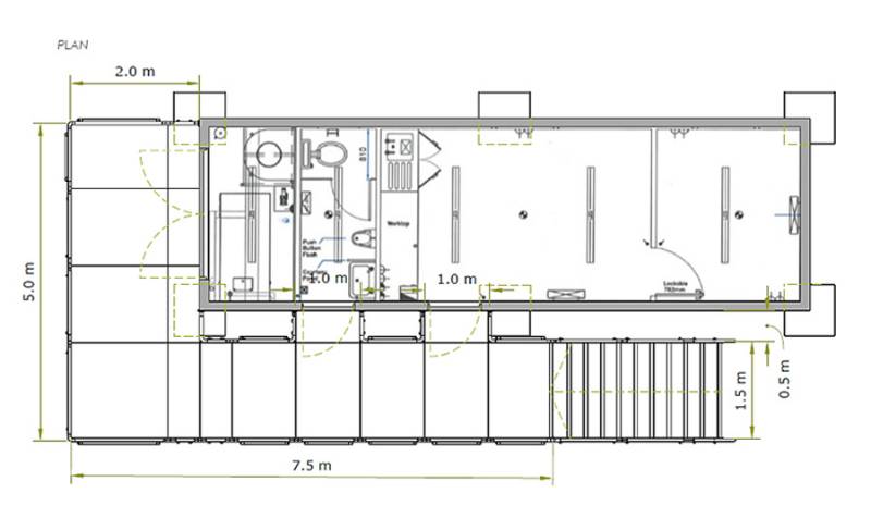
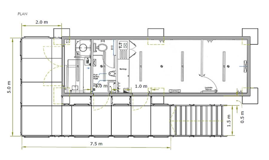
PROJECT BACKGROUND: The construction of weighbridges and a weigh cabin.


The cabin will be elevated 1.5m above ground level on support columns.


Lorries will drive up to the cabin for initial checks before the weighbridges are used to calculate the load by weighing the lorry when empty and when loaded.


REQUIREMENT:

A walkway around the cabin in a L shape with steps to allow the site operatives access. 


ADDITIONAL INFORMATION:

2D and 3D CAD drawings were created by our designer in-house. These were given to the client with their quotation.


END RESULT: A Rapid Ramp platform was raised around 1.5 metres high and included steps.


 The appropriate height was reached with adjustable telescopic legs. Plus, cross bracing was achieved using longer length tubes to ensure rigidity under all platform legs.


The system was completed within a quick three-day turnaround time.


FEATURES INCLUDED:

  •  Infill Handrail - this product prevents users from climbing or falling through gaps.
  • Yellow Tread - this is a safety feature designed to help those with impaired vision identify the nose of a step or level change.
  • Trombone Ends - these are added to the ends of a step unit to prevent clothes catching.
  • Mesh Platform - the self-draining mesh allows water to pass through rather than collect on the surface.
  • 1100mm High Rail – these handrails attach to any level sections.
  • Continuous Handrail - this handrail system ensures users always have support to hold onto.
  • Standard Colour: Black - Black is the standard handrail colour. Handrails are powder-coated to create a durable finish that is tougher than conventional paint.




No featured products in this case study

Contact Rapid Ramp Limited by clicking the button below to find out which products were used in this case study.

More inspiration from Rapid Ramp Limited

View inspiration
Conquest Hospital, St Leonards-on-Sea

Conquest Hospital, St Leonards-on-Sea

Bognor Regis, West Sussex

Bognor Regis, West Sussex

Coca-Cola Enterprises, Wakefield

Coca-Cola Enterprises, Wakefield

Waverley House, Soho

Waverley House, Soho