You are viewing content for United Kingdom.

Choose a country to see content for your location. Changing region will navigate you to the homepage.

NBS Source
I'm a manufacturer
Compare variants

Thermostatic Mixing Valves (Large Bore)

Verified by manufacturer 1 month ago

H32-DLB

Horne Engineering Ltd Variant:

Thermostatic mixing systems.

Jump to:
BOS
+44 (0)1505 321455 Website

Application

Suitable for controlling temperatures in:

  • Hot water supplies distributed to groups of taps or showers (dead-leg).
  • Circulating domestic hot water supplies from large calorifiers and combination boilers. See 'Circulator Location' best practice advice below.
  • Hot water for process applications.

Description

A range of DN32, DN40 and DN50 Horne thermostatic mixing valves that provide temperature control for larger dead-leg mixing applications or circulating domestic hot water systems (DHWS), and for circulating systems in conjunction with water treatment, such as ionisation.


Features and benefits:

  • Four temperature ranges* available: 15°C - 32°C (T1), 32°C - 52°C (T2), 45°C - 62°C (T3), 58°C - 80°C (T4).
  • Highly accurate temperature control across full range of flow rates.
  • Mixed water temperature accurately and reliably controlled over full range of flow rates - from all outlets in use simultaneously, to only one outlet in use (dead-leg applications). Supply pressures should be nominally equal.
  • Mixed water temperature maintained when no outlets are in use. See 'Circulator Location' best practice advice below.
  • Water at the desired temperature is always available at every outlet.
  • Supplied as an assembled package.
  • Easily installed on site.
  • Ease of maintenance.
  • Easily stripped and cleaned without the need for special skills or tools.
  • Robust and reliable.
  • UK Water Regulation 4 compliant.


* Append the relevant range code (e.g., T1) to your selected product variant, such as H40-RT4. Also note - If the intended output set temperature falls within more than one range (e.g., 60°C), choose the range where the set point is closer to the lower limit, thus T4. This reduces expansion fatigue on the thermostatic element, extending its operational life.

General information

Color

Bronze

Finish

Bronze

Material

Gunmetal

Shape

Other

Uniclass

Pr_65_54_95_88 Thermostatic mixing valvesPrimary
Pr_65_54_95_48 High-performance thermostatic mixing valves

CAWS

S90/680 Thermostatic mixing valves

SKU Code

H32-DLB, H32-R, H40-DL, H40-R, H50-DL, H50-R

Specification data - Thermostatic mixing valves

Classification data

Product reference

Thermostatic Mixing Valves (Large Bore).

Valve size

DN32 (1¼" BSP).

Finish

Bronze.

Integral accessories

Dial thermometer.

Temperature

Guidance for specification option:

Insert requirements.

  • Ranges of temperature adjustment: 15°C to 32°C (T1), 32°C to 52°C (T2), 45°C to 62°C (T3) or 58°C to 80°C (T4).
  • T1, T2, T3 or T4 to be suffixed at the end of the product code depending on temperature adjustment selected.
  • If the intended output set temperature falls within more than one range (e.g., 60°C), choose the range where the set point is closer to the lower limit, thus T4. This reduces expansion fatigue on the thermostatic element, extending its operational life.
  • Consult manufacturer for details.


Flow rate (maximum)

2.5 L/s (150 L/min).

Supply pressure

Hot and cold supply pressures to be nominally equal.

Approval

Compliant with UK Water Regulation 4; non-metallic materials in contact with potable water.

Sustainability data

Country of product manufacture

United Kingdom

Manufacturing plant location

Material

Gunmetal

Recyclability

Recyclable

BIM objects

BOS

NBS BIM Object Standard

This BIM object has been authored to meet the requirements of the NBS BIM Object Standard.

Find out more about the NBS BIM Object Standard.

Platform Compatible Version
Revit
-

1

IFC
-

1

Literature

Horne  40 and Horne 50 Thermostatic Mixing Valves

Horne 40 and Horne 50 Thermostatic Mixing Valves

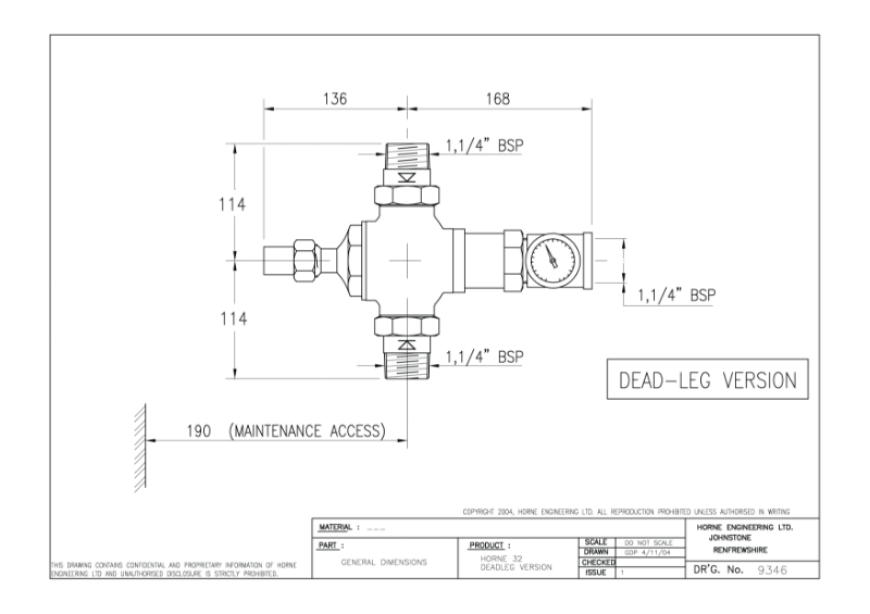
H32-DL Dimensions

H32-DL Dimensions

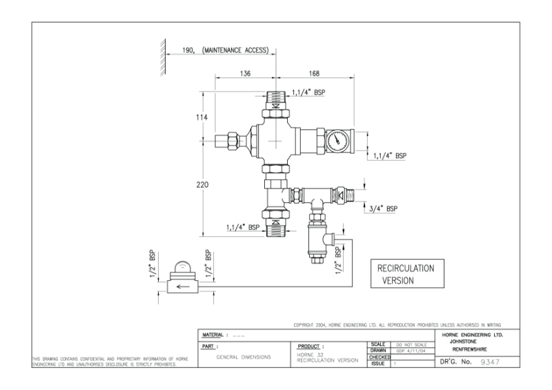
H32-R Dimension

H32-R Dimension

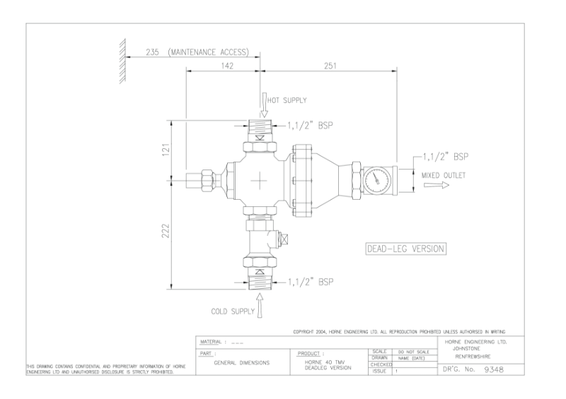
H40-DL Dimensions

H40-DL Dimensions

H40-R Dimensions

H40-R Dimensions

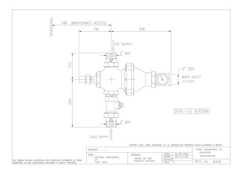
H50-DL Dimensions

H50-DL Dimensions

H50-R Dimensions

H50-R Dimensions

Circulator Location for DHWS - Best Practice

Circulator Location for DHWS - Best Practice

Capacity Chart - Horne 32

Capacity Chart - Horne 32

Capacity Chart - Horne 40

Capacity Chart - Horne 40

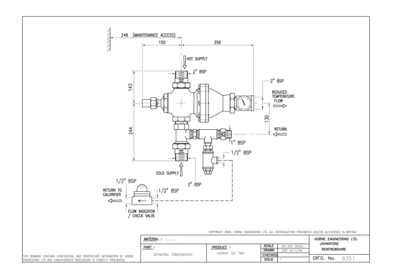
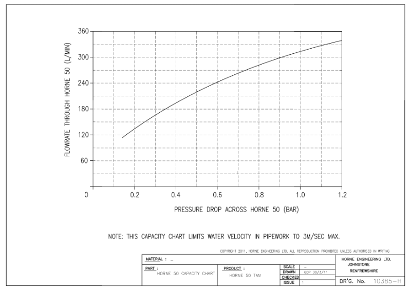
Capacity Chart - Horne 50

Capacity Chart - Horne 50

Horne 32 Brochure

Horne 32 Brochure

Instructions - Horne 32

Instructions - Horne 32

Instructions - H40 & H50

Instructions - H40 & H50

Similar products from Horne Engineering Ltd

Thermostatic Mixing Valve with Isolating Valves

Thermostatic Mixing Valve with Isolating Valves

Thermostatic Mixing Valve with Isolating Valves and 4th Connection to Cold Tap

Thermostatic Mixing Valve with Isolating Valves and 4th Connection to Cold Tap