NBS Source
I'm a manufacturer
Compare variants

Roof Hatch - Surespan SRHP75 Thermally Broken Roof Hatch - Roof Hatch

Verified by manufacturer 8 days ago

600 x 600 mm

Surespan Variant:

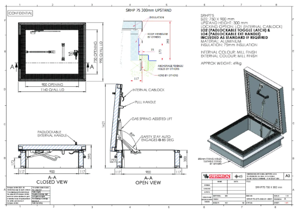
BRE-tested thermally broken aluminium roof access hatch with 75 mm PIR insulation (0.26 W/m²K), gas spring assisted opening to 85°, IPX6 water and IP6X dust rated. Bespoke sizes available. UK made.

Jump to:
BOS
+44 (0)1922 711185 Website

Application

The SRHP75 standard roof hatch is suitable for installation on flat and pitched roofs across commercial, industrial, residential, and public sector buildings. It provides safe and compliant means of access and escape to rooftops for routine maintenance, plant servicing, inspection, and emergency egress.

Typical applications include:

- Rooftop access for HVAC, mechanical, and electrical plant maintenance

- Safe means of escape and emergency egress in accordance with Approved Document B and BS 9991:2024

- Access to roof terraces, green roofs, and amenity spaces

- Inspection and maintenance access for solar panel arrays

- Personnel access for building envelope maintenance and cleaning

- Access to telecommunications equipment and antenna installations

- Roof access for water treatment facilities, data centres, hospitals, schools, transport hubs, and entertainment venues

The hatch is compatible with ladder access (fixed vertical, companionway, and ZIP retractable systems) as well as stairway access, making it suitable for both new-build construction and refurbishment projects. Bespoke sizing ensures the SRHP75 can be specified for any opening dimension, and the product is engineered to accommodate site-specific requirements including enhanced snow loading, high wind exposure, and elevated acoustic or fire performance demands.

Surespan's SRHP75 has been specified on landmark projects worldwide including SoFi Stadium (Los Angeles), Aston Martin F1 Headquarters (Silverstone), HS2 Euston Station (London), and Auckland City Rail Link (New Zealand).

Description

Key Specification Highlights:

  • Thermally broken aluminium lid and upstand with 75 mm PIR polyisocyanurate insulation achieving 0.26 W/m²K (or 75 mm non-combustible mineral wool at 0.43 W/m²K)
  • Gas spring assisted opening to 85° with secure hold-open stay arm and pull handle
  • 300 mm insulated kerb upstand with external curb liner and cap flashing fitted as standard
  • BRE independently tested: IPX6 water ingress, IP6X dust ingress (UKAS accredited)
  • Weathertightness rated to Class A7 per BS EN 12208
  • Unbroken double seal to lid for superior air permeability performance
  • Acoustic performance available up to 45 dB (consult Surespan for project-specific requirements)
  • Fire integrity performance available up to E240 (240 minutes) — consult manufacturer
  • Available in mill finish aluminium, anodised, or polyester powder coated (single or twin colour to any RAL)
  • Manufactured in the UK to BS EN ISO 9001 certified processes
  • Standard sizes from 600 x 600 mm up to 3300 x 1200 mm, plus fully bespoke sizing to any dimension
  • Compatible with fixed vertical ladders, companionway ladders, and ZIP retractable ladder systems
  • BIM objects available in IFC and Revit formats to NBS BIM Object Standard

Product Overview

The Surespan SRHP75 is a premium thermally broken aluminium roof access hatch engineered for safe, convenient, and compliant rooftop access on flat and pitched roof applications. Designed for architects, specifiers, and contractors, this roof hatch delivers exceptional thermal performance, weathertightness, and durability as standard — with the flexibility of fully bespoke manufacturing to suit any project requirement.

At its core, the SRHP75 features a fully insulated and thermally broken lid and upstand construction, eliminating cold bridging at the point of installation. The standard 75 mm PIR polyisocyanurate insulation board achieves a U-value of 0.26 W/m²K, contributing to the building's overall thermal envelope performance and supporting compliance with Part L of the Building Regulations. For projects requiring enhanced fire performance, a 75 mm non-combustible mineral wool insulation option is available, achieving a U-value of 0.43 W/m²K.

Construction and Materials

Manufactured entirely from aluminium, the SRHP75 is lightweight yet exceptionally robust. The 300 mm kerb upstand comes fitted with an external curb liner and cap flashing as standard, enabling straightforward integration with hot or cold applied roofing membranes on site. All corner joints are fully welded and reinforced for long-term structural integrity. The lid features an unbroken double seal system, providing superior resistance to air infiltration and water penetration.

Performance and Testing

Every SRHP75 roof hatch benefits from rigorous independent testing by BRE (Building Research Establishment), one of the UK's most respected testing authorities. The product has achieved IPX6 water ingress protection (tested under UKAS accreditation), confirming robust resistance to heavy rain and powerful water jets. It has also passed IP6X dust ingress testing, providing complete protection against fine particulate matter — critical for installations in dusty industrial or construction environments. Weathertightness has been tested and rated to Class A7 in accordance with BS EN 12208, representing the highest classification for resistance to wind-driven rain.

The SRHP75 can be engineered to withstand significant snow loading conditions and is suitable for installation in exposed or high-altitude environments. Acoustic performance is available up to 45 dB for projects requiring sound attenuation, and fire integrity ratings are available up to E240 (240 minutes) — contact Surespan for project-specific guidance.

Operation and Safety

The roof hatch opens to 85° via gas spring assisted operation, providing smooth, controlled opening with minimal user effort. A secure hold-open stay arm prevents unintended closure during roof access operations. Multiple locking options are available to suit different security and access control requirements, including padlockable external handles (LO4), European deadlocks with thumb turn internal mechanism (LO6), and European deadlocks with dual internal and external key operation (LO7).

For enhanced personnel safety, the SRHP75 is compatible with Surespan's SureGuard hatch railing system with self-closing gate, fixed and retractable handhold accessories, and ladder-up posts. The hatch integrates seamlessly with Surespan's range of fixed vertical ladders, companionway ladders, and ZIP retractable ladder systems (ZIP4 through ZIP7 models), creating a complete access solution from a single manufacturer.

Sizes and Finishes

Standard sizes range from 600 x 600 mm to 3300 x 1200 mm, with fully bespoke sizing available to any dimension. The SRHP75 is offered in three finish options: mill finish aluminium, anodised aluminium, and polyester powder coating to any RAL colour (single or twin colour configurations). Surespan also manufactures two additional roof hatch grades — the SRHP50 with 50 mm insulation and the SRHP25 Budget with 25 mm insulation — for projects where a different performance specification is required.

Compliance and Specification Support

The SRHP75 supports compliance with Approved Document B (fire safety), Approved Document L (conservation of fuel and power), Approved Document K (protection from falling), BS 9991:2024 (fire safety in residential buildings), and the Construction (Design and Management) Regulations 2015. Surespan provides full technical specification support including product datasheets, submittal drawings in PDF and DWG format, fitting instructions, O&M manuals, and BIM objects in both IFC and Revit formats.

For technical assistance, specification guidance, or to request a bespoke quotation, contact Surespan at sales@surespancovers.com or call +44 (0) 1922 711185.

Product page: https://surespancovers.com/product/standard-roof-hatch/?utm_source=nbs&utm_medium=referral&utm_campaign=nbs-product-srhp75

Resource downloads: https://surespancovers.com/resource-centre/roof-hatch-resources/?utm_source=nbs&utm_medium=referral&utm_campaign=nbs-product-srhp75

General information

Color

Other

Silver

White

Grey

Finish

Powder-coated

Anodized

Mill

Material

Aluminium

Shape

Square

Rectangle

Length

600 mm

750 mm

900 mm

1000 mm

1200 mm

Show more

Width

600 mm

750 mm

900 mm

1000 mm

1200 mm

Show more

Height

Bespoke

300 mm

Warranty description

Ten year

Uniclass

Pr_30_59_36_74 Roof hatchesPrimary

CAWS

L20/630 Hatches

SKU Code

SRHP75

Product range

Roofing

Specification data - Roof hatches

Classification data

Format

600 x 600 mm

Performance

-

Fire resistance

Available up to 240 minutes.

Guidance for specification option:

For combined Integrity and Insulation (EI), refer to Fire Rated Roof Hatch SRHTB/FR.

Operation

-

Mode

24 V electric motors.
Gas springs - manual.

Control

Gas spring assisted: manual opening, designed to be opened smoothly and easily with secure stay hold-open arm.

Accessories

None.
Extended skirt liner.

Guidance for specification option:

Used in conjunction with retractable ZIP ladder.

Fixed external handhold.
Retractable handhold.

Guidance for specification option:

Retracts into the opening of the roof hatch.

SureGuard hand railing with self-closing gate.

Guidance for specification option:

Attached to the upstand of the hatch.

Insulation

75 mm PIR HCFC and CFC free polyisocyanurate.

Guidance for specification option:

U-value of 0.27 W/m²K.

75 mm non-combustible mineral wool insulation.

Guidance for specification option:

U-value of 0.43 W/m²K.

Upstand

200 mm thermally broken and insulated.
300 mm with a thermal break and insulation as above.

Guidance for specification option:

As standard.

Locking options

None.
L01 Cablock.

Guidance for specification option:

As standard.

L02 Cablock with hasp and staple.
L04 Cablock with external padlocking handle.
L06 ABS Euro cylinder with external key locking and thumb turn options.
L07 European deadlock with internal and external key operation.

Cover

Fully insulated kerb and lid as specified, corner welded and reinforced.

Seal

Unbroken double seal to lid.

FireRating

Integrity (E) available up to 240 minutes.

Guidance for specification option:

For combined Integrity and Insulation (EI), refer to Fire Rated Roof Hatch SRHTB/FR.

AcousticRating

Available up to 45 dB.

Guidance for specification option:

Consult manufacturer for details.

Retractable ladder

Not required.
ZIP4.

Guidance for specification option:

2500 mm maximum. 9 treads, minimum aperture 650 x 900 mm.

ZIP5.

Guidance for specification option:

2501 x 2790 mm. 10 treads, minimum aperture 650 x 900 mm.

ZIP6.

Guidance for specification option:

2791 x 3090 mm. 11 treads, minimum aperture 650 x 900 mm.

ZIP7.

Guidance for specification option:

3091 x 3390 mm. 12 treads, minimum aperture 650 x 950 mm.

Fixed backboard

ZIP-BB-A to suit a void depth of 510 mm up to 729 mm.
ZIP-BB-B to suit a void depth of 730 mm up to 1029 mm.
ZIP-BB-C to suit a void depth of 1030 mm up to 1330 mm.

Operation

Gas spring assisted manual opening, designed to be opened smoothly and easily with secure stay hold-open arm.

Curb

300 mm in height with external curb liner, thermal break and insulation as specified.

Sustainability data

Contains Red List materials

No

Country of material origin

United Kingdom

Country of product manufacture

United Kingdom

Material

Aluminium

Recyclability

Manufactured from recyclable aluminium sections

Manufacturer guidance

Surespan manufacture aluminium access products using materials supplied to us from principal aluminium extrusion and plate producers.

They understand that the materials are such that this can use up to 80% of post consumer recycled aluminium content.

Recycled content

As defined in clause 7.8 of BS EN ISO 14021

80 %

Expected Life

Ten year

BIM objects

BOS

NBS BIM Object Standard

This BIM object has been authored to meet the requirements of the NBS BIM Object Standard.

Find out more about the NBS BIM Object Standard.

Platform Compatible Version
IFC

IFC2X3

5

Revit

Revit 2016

7

Literature

General Data Sheet

General Data Sheet

Roof Access Hatches

Roof Access Hatches

Roof Hatch for Access Thermally Broken Cover

Roof Hatch for Access Thermally Broken Cover

SP1185G Double Leaf - Double Actuator

SP1185G Double Leaf - Double Actuator

SP1161-A IP66 Keyswitch - Externally Rated Key Switch (2)

SP1161-A IP66 Keyswitch - Externally Rated Key Switch (2)

SP1185D Double Leaf - Single Actuator

SP1185D Double Leaf - Single Actuator

SP1161 Keyswitch - Internally Rated Key Switch (1)

SP1161 Keyswitch - Internally Rated Key Switch (1)

SP1182-A - Single Leaf - Single Actuator

SP1182-A - Single Leaf - Single Actuator

SRHP-Fitting (4)

SRHP-Fitting (4)

SP1185C - Single Leaf - Double Actuator

SP1185C - Single Leaf - Double Actuator

SRHP75 600 X 600

SRHP75 600 X 600

SRHP75 1200 X 1200

SRHP75 1200 X 1200

SRHP75 1000 X 1000

SRHP75 1000 X 1000

SRHP75 900 X 900

SRHP75 900 X 900

SRHP75 1500 X 750

SRHP75 1500 X 750

SRHP75 750 X 750

SRHP75 750 X 750

SRHP75 750 X 900

SRHP75 750 X 900

SRHPE75 3300 X 750

SRHPE75 3300 X 750

SRHPE75 1200 X 1200

SRHPE75 1200 X 1200

SRHP75 1200 X 1200 SG

SRHP75 1200 X 1200 SG

SRHP75 1500 X 750 SG

SRHP75 1500 X 750 SG

Case studies

Surespan provide access to space - Kielder Observatory

Surespan provide access to space - Kielder Observatory

Tunnel Access Hatches - Edmonton London

Tunnel Access Hatches - Edmonton London

Roof Access Hatches - Singapore

Roof Access Hatches - Singapore

Roof Access Hatches - Abu Dhabi Airport

Roof Access Hatches - Abu Dhabi Airport

Similar products from Surespan

Boxed Glazed Roof Access Hatch

Boxed Glazed Roof Access Hatch

Exi-Vent Smoke Vent with Access Hatch - Roof Hatch and AOV

Exi-Vent Smoke Vent with Access Hatch - Roof Hatch and AOV

Fire Rated Roof Access Hatch

Fire Rated Roof Access Hatch

Retrofit Conservation Roof Hatch - Roof Hatch

Retrofit Conservation Roof Hatch - Roof Hatch

Roof access hatch SRHP50 - Roof Hatch

Roof access hatch SRHP50 - Roof Hatch

SRHP/TB Double Leaf Roof Hatch Equipment Hatch - Roof Hatch

SRHP/TB Double Leaf Roof Hatch Equipment Hatch - Roof Hatch