You are viewing content for United Kingdom.

Choose a country to see content for your location. Changing region will navigate you to the homepage.

NBS Source
I'm a manufacturer
Merford

Merford

Shaping sound to enhance people's well-being

+316 38 39 23 52 Website

Sort by:

Showing 1-36 of 38

Sponsored
Brochure | M series - Doors that combine features

Brochure | M series - Doors that combine features

Merford

Keeping sensitive information in and bothersome sound out, and insulating hazardous substances. This can be crucial. For example, in data centres that store the government’s digital information. Or in industry, where workers are exposed to harmful noise every day. For almost 70 years, we have been contributing to the best possible environment to live, work and spend your life. This is because we innovative, test our products, and put the findings into practice. Our M series door is the result, which combines a multitude of features with a huge range of customised options.
Sponsored
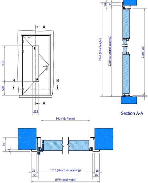
Drawing P001 - M41 single leaf internal door corner frame

Drawing P001 - M41 single leaf internal door corner frame

Merford

Sponsored
Drawing P002 - M41 single leaf internal door block frame

Drawing P002 - M41 single leaf internal door block frame

Merford

Sponsored
Drawing P003 - M41 single leaf external door corner frame

Drawing P003 - M41 single leaf external door corner frame

Merford

Sponsored
Drawing P004 - M41 single leaf external door block frame

Drawing P004 - M41 single leaf external door block frame

Merford

Sponsored
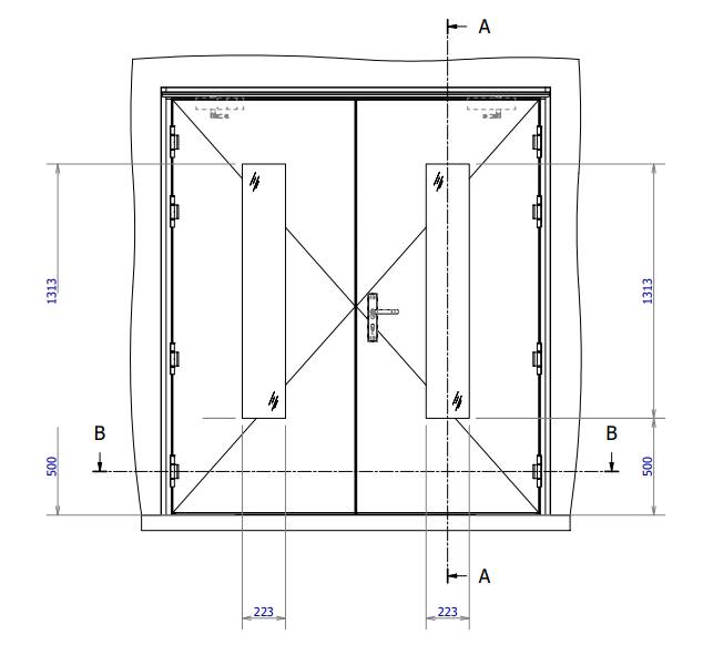
Drawing P005 - M41 double leaf internal door corner frame

Drawing P005 - M41 double leaf internal door corner frame

Merford

Sponsored
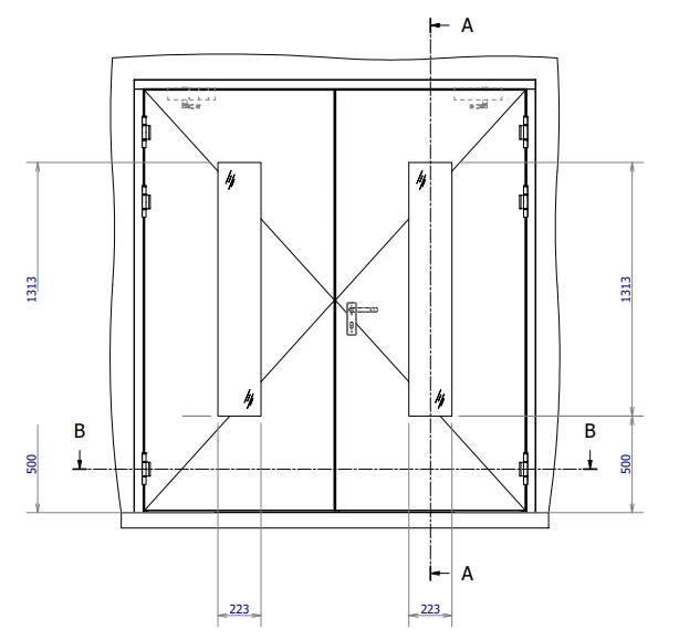
Drawing P006 - M41 double leaf internal door block frame

Drawing P006 - M41 double leaf internal door block frame

Merford

Sponsored
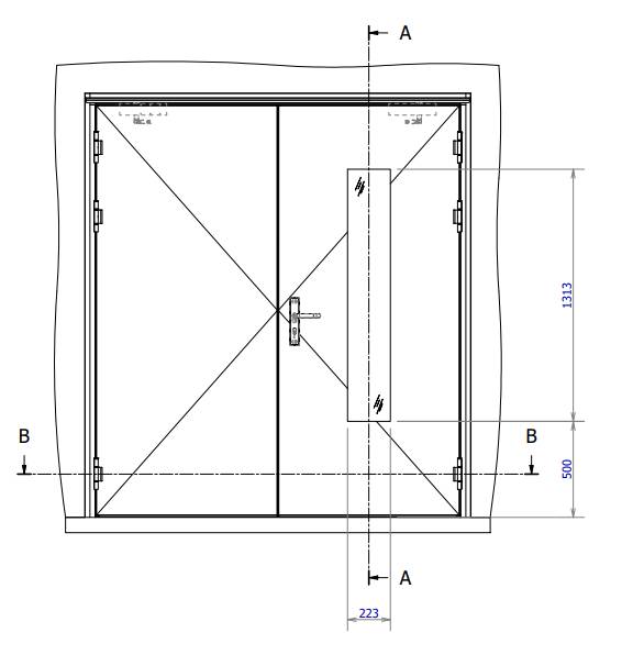
Drawing P007 - M41 double leaf external door corner frame

Drawing P007 - M41 double leaf external door corner frame

Merford

Sponsored
Drawing P008 - M41 double leaf external door block frame

Drawing P008 - M41 double leaf external door block frame

Merford

Sponsored
Drawing P009 - M43M47-M51-M52-M53-M56 single leaf internal door corner frame

Drawing P009 - M43M47-M51-M52-M53-M56 single leaf internal door corner frame

Merford

Sponsored
Drawing P010 - M43-M47-M51-M52-M53-M56 single leaf internal door block frame

Drawing P010 - M43-M47-M51-M52-M53-M56 single leaf internal door block frame

Merford

Sponsored
Drawing P011 - M43M47-M51-M52-M53-M56 single leaf external door corner frame

Drawing P011 - M43M47-M51-M52-M53-M56 single leaf external door corner frame

Merford

Sponsored
Drawing P012 - M43-M47-M51-M52-M53-M56 single leaf external door block frame

Drawing P012 - M43-M47-M51-M52-M53-M56 single leaf external door block frame

Merford

Sponsored
Drawing P013 - M43M47-M51-M52-M53-M56 double leaf internal door corner frame

Drawing P013 - M43M47-M51-M52-M53-M56 double leaf internal door corner frame

Merford

Sponsored
Drawing P014 - M43-M47-M51-M52-M53-M56 double leaf internal door block frame

Drawing P014 - M43-M47-M51-M52-M53-M56 double leaf internal door block frame

Merford

Sponsored
Drawing P015 - M43-M47-M51-M52-M53-M56 double leaf external door corner frame

Drawing P015 - M43-M47-M51-M52-M53-M56 double leaf external door corner frame

Merford

Sponsored
Drawing P016 - M43-M47-M51-M52-M53-M56 double leaf external door block frame

Drawing P016 - M43-M47-M51-M52-M53-M56 double leaf external door block frame

Merford

Sponsored
Drawing P017 - M56L single leaf internal door corner frame

Drawing P017 - M56L single leaf internal door corner frame

Merford

Sponsored
Drawing P018 - M56L single leaf internal door block frame

Drawing P018 - M56L single leaf internal door block frame

Merford

Sponsored
Drawing P019 - M56L single leaf external door corner frame

Drawing P019 - M56L single leaf external door corner frame

Merford

Sponsored
Drawing P020 - M56L single leaf external door block frame

Drawing P020 - M56L single leaf external door block frame

Merford

Sponsored
Drawing P021 - M56L double leaf internal door corner frame

Drawing P021 - M56L double leaf internal door corner frame

Merford

Sponsored
Drawing P022 - M56L double leaf internal door block frame

Drawing P022 - M56L double leaf internal door block frame

Merford

Sponsored
Drawing P023 - M56L double leaf external door corner frame

Drawing P023 - M56L double leaf external door corner frame

Merford

Sponsored
Drawing P024 - M56L double leaf external door block frame

Drawing P024 - M56L double leaf external door block frame

Merford

Sponsored
M41 acoustic data sheet

M41 acoustic data sheet

Merford

M41 acoustic data sheet
Sponsored
M43 acoustic data sheet

M43 acoustic data sheet

Merford

M43 acoustic data sheet
Sponsored
M47 acoustic data sheet

M47 acoustic data sheet

Merford

M47 acoustic data sheet
Sponsored
M51 acoustic data sheet

M51 acoustic data sheet

Merford

M51 acoustic data sheet
Sponsored
M52 acoustic data sheet

M52 acoustic data sheet

Merford

M52 acoustic data sheet
Sponsored
M53 acoustic data sheet

M53 acoustic data sheet

Merford

M53 acoustic data sheet
Sponsored
M56 acoustic data sheet

M56 acoustic data sheet

Merford

M56 acoustic data sheet
Sponsored
M56L acoustic data sheet

M56L acoustic data sheet

Merford

M56L acoustic data sheet
Sponsored
Technical Data Sheet | M41 - technical results sound insulation

Technical Data Sheet | M41 - technical results sound insulation

Merford

Laboratory measurements of sound insulation of the Merford type M41 door.
Sponsored
Technical Data Sheet | M43 - technical results sound insulation

Technical Data Sheet | M43 - technical results sound insulation

Merford

Laboratory measurements of sound insulation of the Merford type M43 door.
Sponsored
Technical Data Sheet | M47 - technical results sound insulation

Technical Data Sheet | M47 - technical results sound insulation

Merford

Laboratory measurements of sound insulation of the Merford type M47 door.

Showing 1-36 of 38