You are viewing content for United Kingdom.

Choose a country to see content for your location. Changing region will navigate you to the homepage.

NBS Source
I'm a manufacturer
Kee Safety Ltd

Kee Safety Ltd

Kee Safety is a global supplier of fall protection and safe access products, services, and training.

01384 632188 Website

Sort by:

Showing 1-36 of 53

Sponsored
Aluminium Kee Walk Datasheet Issue 10

Aluminium Kee Walk Datasheet Issue 10

Kee Safety Ltd

Sponsored
Kee Anchor Operation and Maintenance Manual

Kee Anchor Operation and Maintenance Manual

Kee Safety Ltd

Sponsored
Kee Anchor Technical Datasheet Pack

Kee Anchor Technical Datasheet Pack

Kee Safety Ltd

Sponsored
Kee Anchor White Paper - PPE Regulation and EN 795 Type E Products

Kee Anchor White Paper - PPE Regulation and EN 795 Type E Products

Kee Safety Ltd

Sponsored
Kee Anchor® Operation & Maintenance Manual

Kee Anchor® Operation & Maintenance Manual

Kee Safety Ltd

Sponsored
Kee Attach® Assembly Drawing

Kee Attach® Assembly Drawing

Kee Safety Ltd

Sponsored
Kee Gate® Double Datasheet

Kee Gate® Double Datasheet

Kee Safety Ltd

Sponsored
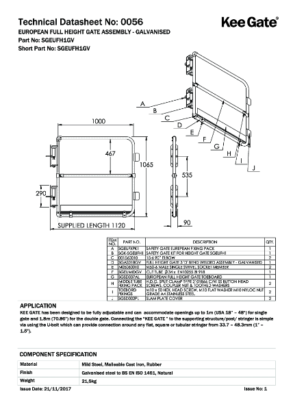
Kee Gate® Full Height European Gate Technical Datasheet

Kee Gate® Full Height European Gate Technical Datasheet

Kee Safety Ltd

Sponsored
Kee Gate® Full Height Gate Installation and Maintenance Manual

Kee Gate® Full Height Gate Installation and Maintenance Manual

Kee Safety Ltd

Sponsored
Kee Gate® Single and Double Gates Installation and Maintenance Manual (English)

Kee Gate® Single and Double Gates Installation and Maintenance Manual (English)

Kee Safety Ltd

Sponsored
Kee Gate® Single and Double Gates Installation and Maintenance Manual (Multilingual)

Kee Gate® Single and Double Gates Installation and Maintenance Manual (Multilingual)

Kee Safety Ltd

Sponsored
Kee Gate® Single and Double Revision 7 Issued March 2025 Technical Datasheet Pack

Kee Gate® Single and Double Revision 7 Issued March 2025 Technical Datasheet Pack

Kee Safety Ltd

Sponsored
Kee Gate® Type A Pallet Gate Assembly

Kee Gate® Type A Pallet Gate Assembly

Kee Safety Ltd

Sponsored
Kee Gate® Type B Pallet Gate Assembly

Kee Gate® Type B Pallet Gate Assembly

Kee Safety Ltd

Sponsored
Kee Gate® Type C Pallet Gate Assembly

Kee Gate® Type C Pallet Gate Assembly

Kee Safety Ltd

Sponsored
Kee Gate® Type D Pallet Gate Assembly

Kee Gate® Type D Pallet Gate Assembly

Kee Safety Ltd

Sponsored
Kee Guard®  for Metal Roofs Datasheet Issue 08

Kee Guard® for Metal Roofs Datasheet Issue 08

Kee Safety Ltd

Sponsored
Kee Guard®  Topfix - Sales Brochure

Kee Guard® Topfix - Sales Brochure

Kee Safety Ltd

Sponsored
Kee Guard® Edge Protection For Narrow Roofs Technical Datasheet Pack

Kee Guard® Edge Protection For Narrow Roofs Technical Datasheet Pack

Kee Safety Ltd

Sponsored
Kee Guard® Folding Roof Edge Protection Technical Datasheet Pack Issue 08

Kee Guard® Folding Roof Edge Protection Technical Datasheet Pack Issue 08

Kee Safety Ltd

Sponsored
Kee Guard® Foldshield Sales Brochure Excerpt

Kee Guard® Foldshield Sales Brochure Excerpt

Kee Safety Ltd

Sponsored
Kee Guard® Lite Aluminium Datasheet Issue 08

Kee Guard® Lite Aluminium Datasheet Issue 08

Kee Safety Ltd

Sponsored
Kee Guard® Lite Operation and Maintenance Manual

Kee Guard® Lite Operation and Maintenance Manual

Kee Safety Ltd

Sponsored
Kee Guard® Sales Brochure p12

Kee Guard® Sales Brochure p12

Kee Safety Ltd

Sponsored
Kee Guard® Sales Brochure p2

Kee Guard® Sales Brochure p2

Kee Safety Ltd

Sponsored
Kee Guard® Technical Datasheet ISS13

Kee Guard® Technical Datasheet ISS13

Kee Safety Ltd

Sponsored
Kee Guard® Topfix Lite - Operation and Maintenance Manual

Kee Guard® Topfix Lite - Operation and Maintenance Manual

Kee Safety Ltd

Sponsored
Kee Guard® Topfix Sales Brochure

Kee Guard® Topfix Sales Brochure

Kee Safety Ltd

Sponsored
Kee Klamp® Components Guide

Kee Klamp® Components Guide

Kee Safety Ltd

Sponsored
Kee Klamp® Electric Vehicle Charger Protection System

Kee Klamp® Electric Vehicle Charger Protection System

Kee Safety Ltd

Sponsored
Kee Klamp® for Shopfitting/ Retail

Kee Klamp® for Shopfitting/ Retail

Kee Safety Ltd

Sponsored
Kee Klamp® Slope Fittings

Kee Klamp® Slope Fittings

Kee Safety Ltd

Sponsored
Kee Klamp® Technical Specification

Kee Klamp® Technical Specification

Kee Safety Ltd

Sponsored
Kee Line Instructions and Assembly Manual

Kee Line Instructions and Assembly Manual

Kee Safety Ltd

Sponsored
Kee Line Operation and Maintenance Manual

Kee Line Operation and Maintenance Manual

Kee Safety Ltd

Sponsored
Kee Line Overhead System Datasheet Issue 19

Kee Line Overhead System Datasheet Issue 19

Kee Safety Ltd

Showing 1-36 of 53