You are viewing content for United Kingdom.

Choose a country to see content for your location. Changing region will navigate you to the homepage.

NBS Source
I'm a manufacturer
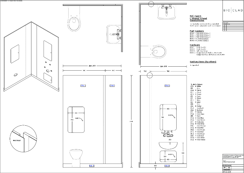
Biopod Type G L Shaped Unit

Design guide

Biopod Type G L Shaped Unit

by BioClad

Biopod Type G L Shaped Unit

Products related to this literature

View all products(18)
Biopod - Type G L Shaped Toilet With Returns

Biopod - Type G L Shaped Toilet With Returns

More literature from BioClad

View all literature (23)
BioClad Wall Protection

BioClad Wall Protection

BioFloor Vinyl Safety Flooring

BioFloor Vinyl Safety Flooring

BioPod Antimicrobial IPS Unit

BioPod Antimicrobial IPS Unit

BioClad 9001 Certificate

BioClad 9001 Certificate