You are viewing content for United Kingdom.

Choose a country to see content for your location. Changing region will navigate you to the homepage.

NBS Source
I'm a manufacturer

Drainage PRO50 Modular Treatment Plant

Verified by manufacturer 6 months ago

Andel Ltd

A sewage management system for facilities with no access to a collective sewage system.

Jump to:
Request BIM
+44 (0)1484 845000 Website

Application

For applications including:

  • Hotels and guest houses.
  • Farms.
  • Housing estates.
  • Schools.
  • Nursing homes.
  • Health centres.
  • Any multi-occupancy/ visitor facility with no access to a sewage system.

Description

The Andel PRO50 is a smart system with a fully automatic treatment process, a microprocessor controller, and automatic restart after a power failure with audible and visual alarms. Constructed from high-density polyethylene (HDPE), which is known for having high tensile strength and impact resistance, chemical and pH resistance and frost resistance, the PRO50 is built to last and guaranteed for ten years.


The tank is lightweight and delivers a high performance in the treatment of wastewater. Anti-odour filters also help to eliminate unpleasant smells while built-in fuses and lockable hatches guarantee safety.


Features and benefits:

  • Has the capacity to support up to fifty people.
  • Cheap and easy to install.
  • Low operating costs.
  • Allows for grass, flowers and small shrubs and bushes to be planted above the tank for aesthetics.
  • Moving bed biofilm reactor (MBBR) provides maximum efficiency in a reduced space, continuous treatment and ability to withstand peak loads and flow variations.
  • Access hatches allow for ease of servicing.
  • Sold with PKP950 cover.
  • Meets all UK and European standards.


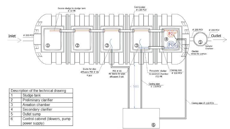
The PRO50 has four chamber types as standard, additional chambers can be added as required:

  • Chamber type one - Sludge tank.
  • Chamber type two - Preliminary clarifier (two chambers).
  • Chamber type three - Aeration chamber.
  • Chamber type four - Secondary clarifier with sump outlet control cabinet, driver and diffusor.

General information

Color

Black

Material

High density polyethylene (HDPE)

Shape

Other

Length

7280 mm

Width

2240 mm

Height

2811 mm

Warranty description

Ten year

Uniclass

Pr_70_55_76_66 Packaged sewage treatment unitsPrimary

CAWS

R12/130 Private packaged sewage treatment system

R17/325 Packaged sewage treatment units

Specification data - Packaged sewage treatment units

Classification data

Standard

To BS EN 12566-1.

Tank material

High density polyethylene (HDPE).

Volume (minimum)

25000 L.

Guidance for specification option:

  • Chamber one: 5000 L.
  • Chamber two: 10000 L.
  • Chamber three: 5000 L.
  • Chamber four: 5000 L.

Treatment capacity

50 people.

Connections

-

Inlet diameter

DN 200.

Outlet diameter

DN 200.

Integral accessories

PKP950 cover.

Weight

1750 kg.

Area

17.3 m².

Depth

2080 mm (inlet under turret).
1960 mm (outlet under turret).

Flowrate

7.5 m³/day.

Sustainability data

Material

High density polyethylene (HDPE)

Literature

Drainage Pro50 Modular Treatment Plant Data Sheet

Drainage Pro50 Modular Treatment Plant Data Sheet

Similar products from Andel Ltd

Drainage PRO24 Premium MBBR - Sewage Treatment Plant

Drainage PRO24 Premium MBBR - Sewage Treatment Plant

Drainage PRO6 & PRO12 Sewage Treatment

Drainage PRO6 & PRO12 Sewage Treatment

Drainage Pumping Chamber SP1000 800

Drainage Pumping Chamber SP1000 800

Drainage Pumping Station

Drainage Pumping Station