You are viewing content for United Kingdom.

Choose a country to see content for your location. Changing region will navigate you to the homepage.

NBS Source
I'm a manufacturer
Compare variants

2-in-1 Aluminium Smoke Vent System | AOV Roof Access Hatch - Roof Hatch, AOV

Verified by manufacturer 9 hours ago

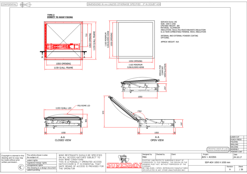
1050 x 1050 mm

Trade Access Panels Variant:

50 mm thermal break solid top smoke vent with roof access hatch and comfort ventilation.

Jump to:
Request BIM
+44 (0)1922 500 145 Website

Application

The Aluminium Smoke Vent and Roof Access Hatchis designed to act as a thermal break solid top or dome smoke vent.

Description

The 140° thermally broken Aluminium Smoke Vent and Roof Access Hatch is designed to EN12101-2. The AOV also offers push button comfort ventilation. The lid and upstand features a 50 mm thermally broken section and fully insulated with 50 mm CFC and HCFC free polyisocyanurate insulation. Alternative non-combustible Mineral Wool insulation can be specified at no extra cost. 

The AOVs can achieve 1 m² airflow and are available in standard stocked sizes or made to any size in between 900 x 900 mm and 1260 x 1260 mm. These smoke vents come with wind deflectors as standard to improve airflow. The smoke ventilation unit is fully insulated with a 300 mm insulated Upstand. The lid is offering a U-value of 0.43 W/m²K. Non-combustible mineral insulation also available.

NOTE: Structural opening for this AOV is the listed size. i.e. 1050 x 1050 mm, the smoke vent structural opening of 1050 x 1050 mm.

Supplied in standard mill finish aluminium, other colours available on request.

Features and benefits:

  • Ten year guarantee.
  • Testing - RE 1000 ventilation and 10 000 opening.
  • Offset actuator mechanism for Roof Access.
  • Snow load of SL500.
  • Wind load of WL1500.
  • Temperature class T (-15°).
  • Fire resistance class B300.
  • Aerodynamic tests (measured values): with deflectors: Cv from 0.66 to 0.73; without deflectors: Cv from 0.42 to 0.56.
  • Solid Aluminium cover.
  • Heavy duty continuous hidden hinge.
  • Aluminium with 50 mm thermal break.
  • 300 mm fully insulated upstand.
  • 140° Opening via 24 V d.c. actuator.
  • CE Marked to EN1 2101-2.

General information

Color

Grey

Guidance for specification option:

Milled aluminium.

Other

Guidance for specification option:

Powder coated RAL.

Finish

Powder-coated

Material

Aluminium

Shape

Square

Length

1050 mm

1260 mm

Width

1050 mm

1260 mm

Warranty description

Ten year

Uniclass

Pr_70_65_04_56 Natural smoke and heat exhaust ventilatorsPrimary

CAWS

L10/490 Roof ventilators

L10/47 Roof ventilators

SKU Code

SURESPAN/AOV

Specification data - Natural smoke and heat exhaust ventilators

Classification data

Standard

To BS EN 12101-2.

Third-party certification

CE marked.

Mounting

Roof-mounted.

Aerodynamic free area

To EN12101-2, 0.69 m².

Reliability classification

Re 50.

Snow load classification

SL 500.

Low ambient temperature classification

T (-15).

Wind load classification

WL 1500.

Resistance to heat classification

B300.

Arrangement

Glazed.

Guidance for specification option:

Polycarbonate dome lid.


The 35.5 mm sealed double glazed unit will comprise Pilkington 6 mm toughened K polished all round outer pane, 20 mm Warm Edge silver spacer Bar argon filled, Pilkington 9.5 mm toughened & laminated inner pane. This sealed glazed unit has a vertical centre pane U-Value of 1.5 W/m²K.

Flap.

Guidance for specification option:

Solid aluminium lid.

Dimensions

-

Length

1050 mm.

Width

1050 mm.

Height

300 mm.

Manufacturer guidance

Curb height.

Controls

24v control centre.
Fireman’s switch.
Key switch.
Push button.
Smoke detector.

Materials

-

Ventilator

-

Frame

Aluminium.

Glazing

Not required.
Polycarbonate dome.

Finish

Mill finish.
Principal components powder-coated.

Colour

Natural.

Guidance for specification option:

Milled aluminium.

RAL colour to be agreed.

Guidance for specification option:

Powder coated.

Integral upstands

-

Material

Aluminium.

Finish

Mill finish.
Powder coating.

Colour

Natural.

Guidance for specification option:

Milled.

RAL colour to be agreed.

Guidance for specification option:

Powder coated.

Seals

Double unbroken bubble and blade seal.

Execution

Installing ventilators.

Insulation Options

50 mm polyisocyanurate insulation.

Guidance for specification option:

0.43 W/m²K.

50 mm non-combustible mineral wool insulation.

Guidance for specification option:

0.63 W/m²K.

Upstand

300 mm thermally broken and insulated.

Geometrical opening

1.03 m².

Manufacturer guidance

Approved Document B Geometric Area (without deflectors).

Sustainability data

Contains Red List materials

No

Country of material origin

United Kingdom

Country of product manufacture

United Kingdom

Material

Aluminium

Literature

Surespan Smoke Vent Specification

Surespan Smoke Vent Specification

Surespan AOV Technical Drawing

Surespan AOV Technical Drawing

Surespan AOV Data Sheet

Surespan AOV Data Sheet

Similar products from Trade Access Panels

AOV Smoke Vent for Flat Roof | Polycarbonate Automatic Smoke Vent for Builders Kerb | SHEV | Brett Martin Mardome - Roof Hatch, AOV

AOV Smoke Vent for Flat Roof | Polycarbonate Automatic Smoke Vent for Builders Kerb | SHEV | Brett Martin Mardome - Roof Hatch, AOV

AOV Smoke Vent System Rooflight | Mardome AOV | Automatic Smoke Ventilation   - Roof Hatch, AOV

AOV Smoke Vent System Rooflight | Mardome AOV | Automatic Smoke Ventilation - Roof Hatch, AOV