You are viewing content for United Kingdom.

Choose a country to see content for your location. Changing region will navigate you to the homepage.

NBS Source
I'm a manufacturer
This literature item is no longer available.
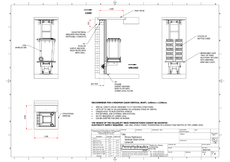
Vertical Chain Drive CellarLift with Bin Tray

Technical drawing

Vertical Chain Drive CellarLift with Bin Tray

by Penny Hydraulics Ltd

Viewing archived literature data

This literature has been archived and is no longer valid.

No related products in this Technical drawing

Contact Penny Hydraulics Ltd by clicking the button below to find out which products were used in this Technical drawing.