You are viewing content for United Kingdom.

Choose a country to see content for your location. Changing region will navigate you to the homepage.

NBS Source
I'm a manufacturer
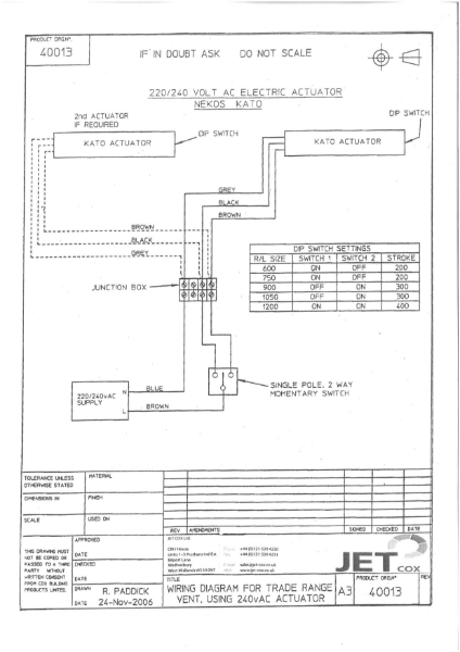
Trade electric Hinge Wiring Diagram

Installation instructions

Trade electric Hinge Wiring Diagram

by Trade Access Panels

Products related to this literature

View all products(45)
Rooflight | Flat Roof Window | Flat Roof Polycarbonate Dome Rooflight | Electric Opening | Coxdome  - Polycarbonate Rooflight, Electric

Rooflight | Flat Roof Window | Flat Roof Polycarbonate Dome Rooflight | Electric Opening | Coxdome - Polycarbonate Rooflight, Electric

More literature from Trade Access Panels

View all literature (100)
BMTRADA Fire Resistance Testing Certificate BMT/FEI/F14064

BMTRADA Fire Resistance Testing Certificate BMT/FEI/F14064

Exova Warringtonfire Fire Certificate BMT/CNA/F15304

Exova Warringtonfire Fire Certificate BMT/CNA/F15304

BMTRADA Fire Resistance Testing Certificate BMT/FEI/F15036

BMTRADA Fire Resistance Testing Certificate BMT/FEI/F15036

Assessment of Panel Technologies steel doorsets Certificate CFR 160205A

Assessment of Panel Technologies steel doorsets Certificate CFR 160205A