NBS Source
I'm a manufacturer
This literature item is no longer available.
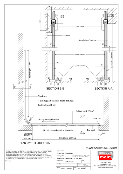
Rundum Original side sliding garage door T-bar

Technical drawing

Rundum Original side sliding garage door T-bar

by Rundum Meir (UK) Ltd

Viewing archived literature data

This literature has been archived and is no longer valid.

No related products in this Technical drawing

Contact Rundum Meir (UK) Ltd by clicking the button below to find out which products were used in this Technical drawing.