You are viewing content for United Kingdom.

Choose a country to see content for your location. Changing region will navigate you to the homepage.

NBS Source
I'm a manufacturer
Product specification 80-R

Technical data sheet

Product specification 80-R

by SUNSHIELD Unique Louvres

Products related to this literature

View all products(4)
Aluminium Motorized Skylight Louvres - 70 mm Pitch - Solar Shading

Aluminium Motorized Skylight Louvres - 70 mm Pitch - Solar Shading

More literature from SUNSHIELD Unique Louvres

View all literature (24)
Product specification 150-E

Product specification 150-E

Technical Drawing Wooden Louvre 148-W

Technical Drawing Wooden Louvre 148-W

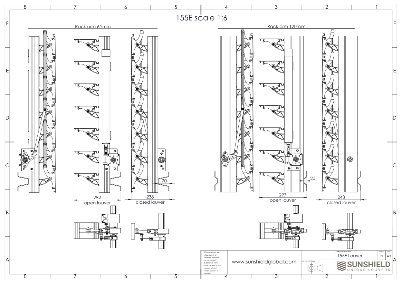
Technical Drawing Aluminium Louvre 155-E

Technical Drawing Aluminium Louvre 155-E

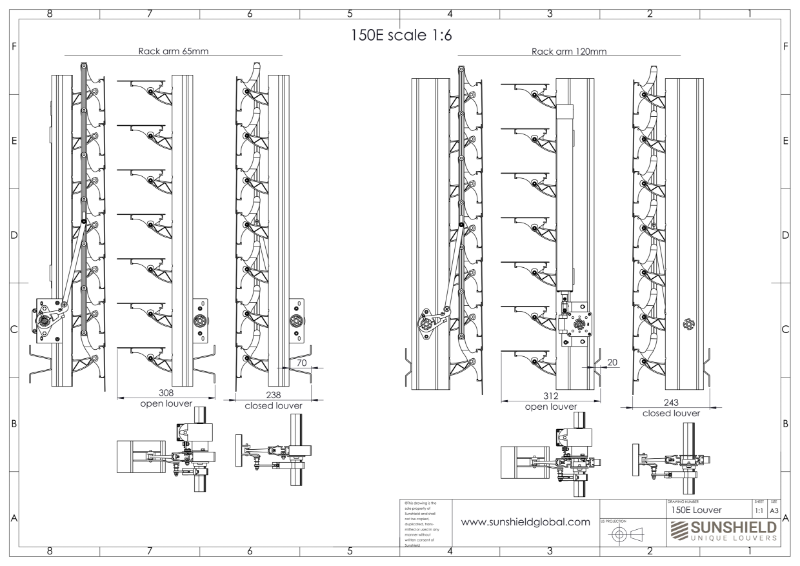
Technical Drawing Aluminium Louvre 150-E

Technical Drawing Aluminium Louvre 150-E