You are viewing content for United Kingdom.

Choose a country to see content for your location. Changing region will navigate you to the homepage.

NBS Source
I'm a manufacturer
This literature item is no longer available.
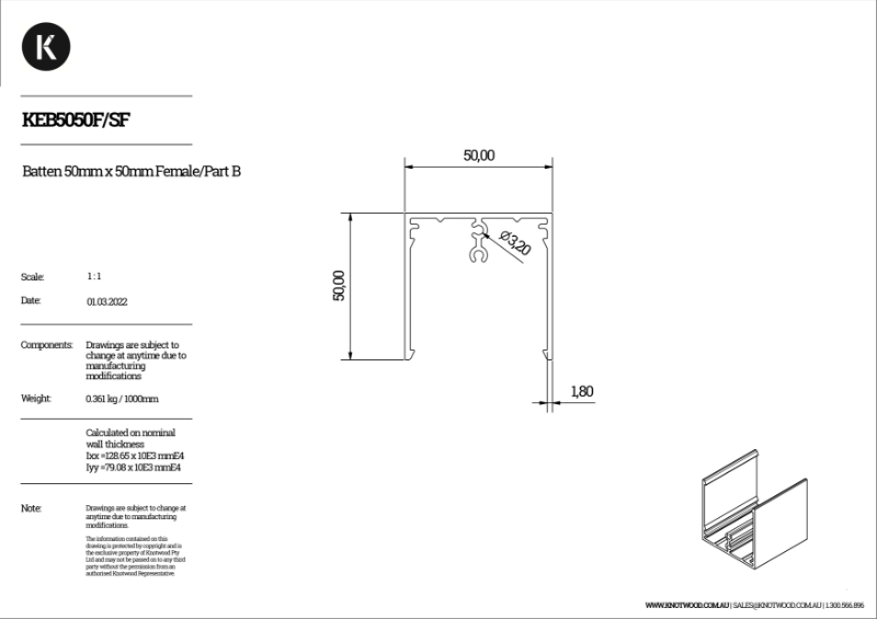
KEB5050F-SF - 50 x 50 mm profile (F) batten

Technical drawing

KEB5050F-SF - 50 x 50 mm profile (F) batten

by Knotwood

Viewing archived literature data

This literature has been archived and is no longer valid.

No related products in this Technical drawing

Contact Knotwood by clicking the button below to find out which products were used in this Technical drawing.

More literature from Knotwood

View all literature (1)
Knotwood Brochure

Knotwood Brochure