You are viewing content for United Kingdom.

Choose a country to see content for your location. Changing region will navigate you to the homepage.

NBS Source
I'm a manufacturer
Compare variants

S307A/T Triple-Glazed Outward Open Timber / Alu-Clad Timber Framed Entrance Door

Verified by manufacturer 21 days ago

Timber

Norrsken Company Ltd Variant:
Product certifications:
  • PAS 24

    Certificate type

  • EPD

    EPD

    Certificate type

Outward opening triple-glazed timber framed door with optional aluminium cladding, suitable for Passive Houses.

Jump to:
Request BIM
+44 (0)1202 632777 Website

Application

Suitable for modern or traditional low-energy and Passive House-standard homes, refurbishments, retrofits and multi-dwelling developments.

Whether it's converting industrial barns into a contemporary sanctuary or pushing the boundaries of sustainable design in Scandinavian-style passive houses, our projects span every architectural vision.

We work with clients on a wide range of projects throughout England, Wales and parts of Scotland.

Description

The Triple-Glazed Timber Framed Door (S307A and S307T) is a high-performance, energy-efficient door. With optional aluminium cladding, it combines timber warmth with durability and low maintenance. Available as single or double doors, with or without sidelights, it offers design flexibility and excellent thermal insulation.

Features and benefits:

  • Superior thermal efficiency and insulation.
  • Optional aluminium cladding for enhanced durability, weather resistance, and low maintenance.
  • Available as single or double doors, with or without sidelights. View example available panel designs here.
  • Hinges can be specified for 180-degree opening, improving accessibility and functionality.
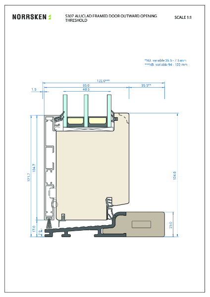
  • Built on the P31 frame model with variable frame depths from 94 mm to 122 mm.
  • Achieves typical U-values of approximately 0.76 W/m²K.
  • Combines the natural aesthetics of timber with modern performance and resilience.
  • Suitable for highly energy-efficient buildings.
  • PAS 24 Certified.

Project showcase

The S307 door has been used in seafront Passive House apartment blocks, award-winning SIPS family homes, sensitive barn renovation projects and multiple contemporary passive house projects. Read the Cricket Heritage case study below, or get a taste of the vast array of project applications for this door in the inspiration section of the product page on our website.

Create Something Distinct

Beyond custom dimensions and precision manufacturing, we provide the design flexibility to perfectly express your vision.

From custom shapes and specialized hardware to powder-coated trims and distinct hardware - find the finishes you need, whatever your project specification.

Browse available Door Handles and example Panel Designs for full customisation in your designs.

General information

Color

Beige

Black

Blue

Bronze

Brown

Show more

Manufacturer guidance

Both aluminium and timber components available in a full range of RAL colours for complete design flexibility.

Finish

Powder-coated

Textured

Coated

Material

Wood

Timber

Aluminium

Glass

Shape

Rectangle

Length

Bespoke

Width

Bespoke

Height

Bespoke

Warranty description

Ten year

Uniclass

Pr_30_59_24_16 Composite doorsetsPrimary
Pr_30_59_24_97 Wood doorsets

CAWS

L20/55 Doorsets

L20/430 Wood doorsets

L20/480 Doorsets

L2/304 Wood external doorsets

SKU Code

S307T

Specification data - Composite doorsets

Classification data

Configuration

Single-leaf, single-action.
Double-leaf, single-action.
Single-leaf, single-action with sidelights.
Double-leaf, single-action with sidelights.

Manufacturer guidance

Outward opening.

Doorset size

-

Manufacturer guidance

Consult manufacturer for details and insert size requirements.

Performance

-

Acoustic performance

33 dB.

Thermal

0.76 W/m²K.

Guidance for specification option:

Glass U-value: 0.53 W/m²K.

Manufacturer guidance

Whole window U-value.

Intruder resistance

-

Minimum requirement

To PAS 24.

Application

-

Manufacturer guidance

Consult manufacturer for details and insert requirements.

Conformity

-

Manufacturer guidance

Consult manufacturer for details and insert requirements.

Frame

-

Materials

Engineered timber.

Threshold

Fiber threshold outside; oak bead inside.

Perimeter seals or inserts

Weather sealing: Trelleborg SH115.

Finish

Sprayed, Teknos Aquatop.

Colour

RAL colour.

Guidance for specification option:

Available in a full range of RAL colours. 

Consult manufacturer for details and insert requirements.

Film thickness (minimum)

Coating applicator to determine.

Frame accessories

-

Manufacturer guidance

Consult manufacturer for details and insert requirements or omit.

Door leaf

-

Thickness

82.5 mm.

Manufacturer guidance

Available in a variable range of frame depths from 94 mm to 122 mm.

Glazing units within door leaf typically 48.5 mm thickness.

Consult manufacturer for details and insert requirements.

Core

Wood core.

Guidance for specification option:

Wood (pine); quality class A1 – A3.

Panel details

Glazed.

Guidance for specification option:

  • Triple-glazed to EN 14351-1:2006+A2:2016.
  • 48 mm IGU -- 4LowE-4-4LowE.
  • 2 x 18 mm Swisspacer Ultimate.
  • Argon 90%, air 10%.

Perimeter seals

Weather sealing: Trelleborg SH115.

Glazing

-

Type

48 mm triple glazed, two panes Low-E, argon filled.

Manifestation

Not required.
Required.

Guidance for specification option:

Optional. Consult manufacturer for details and insert requirements.

Glazing accessories

Not required.
Integral blinds.

Finish

-

Manufacturer guidance

Consult manufacturer for details and insert requirements.

Colour

-

External

RAL colour.

Guidance for specification option:

Available in a full range of RAL colours. 

Consult manufacturer for details and insert requirements.

Timber stain, white.
Timber stain, grey.
Timber stain, clear.
Timber stain, light.
Timber stain, mid.
Timber stain, dark.

Internal

As external.
RAL colour.

Guidance for specification option:

Available in a full range of RAL colours. 

Consult manufacturer for details and insert requirements.

Timber stain, white.
Timber stain, grey.
Timber stain, clear.
Timber stain, light.
Timber stain, mid.
Timber stain, dark.

Door accessories

-

Manufacturer guidance

Consult manufacturer for details and insert requirements or omit.

Hardware

Not required.
Hinges allowing 180-degree opening.
Hinges - Simonswerk.
Hinges - Viking.
Espagnolette - ASSA (Fix).
Espagnolette - Winkhaus.

Accessories

-

Manufacturer guidance

Consult manufacturer for details and insert requirements or omit.

Air permeability

To EN 12207, Class 4.

Watertightness

To EN 12208, 7A.

Sustainability data

Contains Red List materials

No

Country of material origin

Europe

Country of product manufacture

Estonia

Manufacturing plant location

Material

Wood
Timber
Aluminium
Glass
Carbon dioxide equivalent

Carbon dioxide equivalent, as defined in BS EN 15804

Certified

Stage
Normalised unit (kg CO₂ eq/kg)
Declared unit (kg CO₂ eq/m²)
Stage:A1–A3 ('Production stage')
Normalised unit : 2.154 (kg CO₂ eq/kg)
Declared unit : 84.7

Manufacturer guidance

  • Weight: 39.27 kg/m².
  • Frame depths available: 94–122 mm (variable).
  • Density range (frame depth/ density):
    • 92 mm (minimum)/ 426.8 kg/m³.
    • 106 mm (midpoint)/ 370.5 kg/m³.
    • 120 mm (maximum)/ 327.3 kg/m³.

Expected Life

50 year

Product certifications

Product certifications

PAS 24

PAS 24

S307/309 PAS 24:2016 Certificate

EPD

EPD

Environmental Product Declaration - S303, S305, S307, S309 Doors

Literature

Outward Opening Alu-Clad Framed Door (S307A)

Outward Opening Alu-Clad Framed Door (S307A)

Norrsken Door Handles Brochure

Norrsken Door Handles Brochure

Case studies

Heritage Cricket pavilion Restored with Alu-clad Glazing

Heritage Cricket pavilion Restored with Alu-clad Glazing

Award-Winning Low Energy Home

Award-Winning Low Energy Home

Similar products from Norrsken Company Ltd

S303T Outward Open Timber Panel Entrance Door

S303T Outward Open Timber Panel Entrance Door

S305A/T Inward Open Timber / Alu-Clad Timber Panel Entrance Door

S305A/T Inward Open Timber / Alu-Clad Timber Panel Entrance Door

S309A/T Inward Open Timber / Alu-Clad Timber Framed Entrance Door

S309A/T Inward Open Timber / Alu-Clad Timber Framed Entrance Door