You are viewing content for United Kingdom.

Choose a country to see content for your location. Changing region will navigate you to the homepage.

NBS Source
I'm a manufacturer
This product is no longer available.
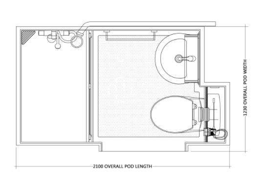
MSL2 GRP Bathroom Pod

MSL2 GRP Bathroom Pod

Last verified by manufacturer over a year ago

Viewing archived product data

This product has been archived and is no longer available for project specification within NBS . Archived data may not reflect the manufacturer's most current version of the product.

Modular Systems Ltd