You are viewing content for Australia.

Choose a country to see content for your location. Changing region will navigate you to the homepage.

NBS Source
I'm a manufacturer
Compare variants

Wide Based Ovolo Gutter (COLORBOND® Steel)

Verified by manufacturer over a year ago

ZINCALUME® Steel

Fielders Variant:

Contemporary gutter profile. Available in WA only.

Jump to:
Request BIM
+61 8 8292 3611 Website

Application

Suitable for new buildings or as update to existing dwellings. Available in Western Australia only.


AUSTRALIAN STANDARDS

 

Published installation guidelines align with AS 1562.1:2018 Design and Installation of sheet and wall cladding.

 

Fielders steel products comply with:

  •       AS 1397:2011 Continuous hot-dip metallic coated steel sheet and strip - Coatings of zinc and zinc alloyed with aluminium and magnesium.
  •      AS/NZS 2728:2013 Prefinished/prepainted sheet metal products for interior/exterior building applications - Performance requirements.
  •       AS 1397:2011 which defines the coating types and classes and steel grades for hot dip metallic coated steel.

Description

Wide Based Ovolo Gutter is contemporary guttering profile. Some of its features include:

  • Modern look.
  • Offers the benefits of roll-formed steel.
  • Available in a range of colours and finishes.

General information

Material

Steel.

Shape

Other

Manufacturer guidance

Profile has a convex frontage, i.e. an ovolo.

Width

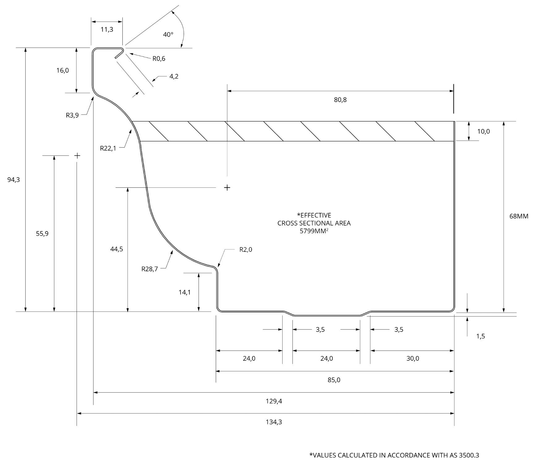
129.40 mm

Height

94.30 mm

Warranty description

20 years.

Manufacturer guidance

Covered by BlueScope material warranties.


All COLORBOND® steel gutters have a warranty of up to 20 years, subject to project assessment and terms and conditions.

Uniclass

Pr_65_50_35_31 Galvanized steel eaves guttersPrimary
Pr_65_50_35_42 Hot-dip pre-coated carbon steel eaves gutters

SpecPack

07310 Slate Roofing

07320 Tile Roofing

07410 Insulated Roof and Wall Panels

07600 Metal Roofing, Siding and Roof Plumbing

SpeedSpec

07610 Roofing and Roof Plumbing

NATSPEC National Classification System

0428 Roofing – Insulated Panel Systems

0427 Roofing - Tiles

0426 Roofing - Slate

0423 Roofing – Profiled Sheet Metal

0421 Roofing - Combined

Specification data - Galvanized steel eaves gutters

Classification data

Standard

To AS 1397 and AS/NZS 2179.1.

Size (nominal width)

129.40 mm curved towards 85 mm base.

Manufacturer guidance

Refers to effective gutter width.

Thickness or gauge

-

Cross sectional area of gutter ≤ 10 000 mm²

0.50 mm.

Manufacturer guidance

Refers to metal gauge of gutter profiles less than 10 000 mm².

Corrosion protection

-

Class

AM125.

Finish

Natural.

Colour

Standard ZINCALUME steel colour.

CrossSectionArea

5799 mm².

Manufacturer guidance

Refers to Effective Cross Sectional Area (ECA). ECA is 10 mm below the overflow level.

Height

94.30 mm with overflow level at 68 mm.

Length

-

Manufacturer guidance

Sheets are supplied custom cut to length to suit project requirements. Transportation limits apply.

Material

ZINCALUME® steel.

Sustainability data

Country of material origin

Australia

Country of product manufacture

Australia

Recyclability

100% Recyclable.

Recycled content

As defined in clause 7.8 of BS EN ISO 14021

20 %

Manufacturer guidance

Maximum value only. Product is made with 15–20% recycled content.

Similar products from Fielders

115 Hi Ten O.G. (Steel)

115 Hi Ten O.G. (Steel)

115 Quad Gutter (COLORBOND® Steel)

115 Quad Gutter (COLORBOND® Steel)

125 D Gutter (COLORBOND® Steel)

125 D Gutter (COLORBOND® Steel)

125 Quarter Round Gutter (COLORBOND® Steel)

125 Quarter Round Gutter (COLORBOND® Steel)

150 Half Round Gutter (COLORBOND® Steel)

150 Half Round Gutter (COLORBOND® Steel)

150 Halfline® Gutter (COLORBOND® Steel)

150 Halfline® Gutter (COLORBOND® Steel)

150 Hi Front Quad Gutter (COLORBOND® Steel)

150 Hi Front Quad Gutter (COLORBOND® Steel)

Ainsworth O.G. (COLORBOND® Steel)

Ainsworth O.G. (COLORBOND® Steel)

Buster Gutter (Steel)

Buster Gutter (Steel)

Fascia Gutter (COLORBOND® Steel)

Fascia Gutter (COLORBOND® Steel)