You are viewing content for Australia.

Choose a country to see content for your location. Changing region will navigate you to the homepage.

NBS Source
I'm a manufacturer
Compare variants

115 Quad Gutter (COLORBOND® Steel)

Verified by manufacturer over a year ago

ZINCALUME® Steel

Fielders Variant:

Classic gutter profile. Available in SA, NSW and VIC only.

Jump to:
Request BIM
+61 8 8292 3611 Website

Application

Suitable for both modern and traditional designs. Available in South Australia, New South Wales and Victoria only.


AUSTRALIAN STANDARDS

 

Published installation guidelines align with AS 1562.1:2018 Design and Installation of sheet and wall cladding.

 

Fielders steel products comply with:

  •       AS 1397:2011 Continuous hot-dip metallic coated steel sheet and strip - Coatings of zinc and zinc alloyed with aluminium and magnesium.
  •      AS/NZS 2728:2013 Prefinished/prepainted sheet metal products for interior/exterior building applications - Performance requirements.
  •       AS 1397:2011 which defines the coating types and classes and steel grades for hot dip metallic coated steel.

Description

115 Quad Gutter is a classic guttering profile suitable for a wide range of applications. It is one of Fielders' most popular guttering profiles. Some of its features include:

  • Widely adaptable gutter profile.
  • Vast water capacity.
  • Available in a range of colours and finishes.

General information

Material

Steel.

Shape

Rectangle

Width

130 mm

Height

90 mm

Warranty description

20 years.

Manufacturer guidance

Covered by BlueScope material warranties.


All COLORBOND® steel gutters have a warranty of up to 20 years, subject to project assessment and terms and conditions.

Uniclass

Pr_65_50_35_31 Galvanized steel eaves guttersPrimary
Pr_65_50_35_42 Hot-dip pre-coated carbon steel eaves gutters

SpecPack

07310 Slate Roofing

07320 Tile Roofing

07410 Insulated Roof and Wall Panels

07600 Metal Roofing, Siding and Roof Plumbing

SpeedSpec

07610 Roofing and Roof Plumbing

NATSPEC National Classification System

0428 Roofing – Insulated Panel Systems

0427 Roofing - Tiles

0426 Roofing - Slate

0423 Roofing – Profiled Sheet Metal

0421 Roofing - Combined

Specification data - Galvanized steel eaves gutters

Classification data

Standard

To AS 1397 and AS/NZS 2179.1.

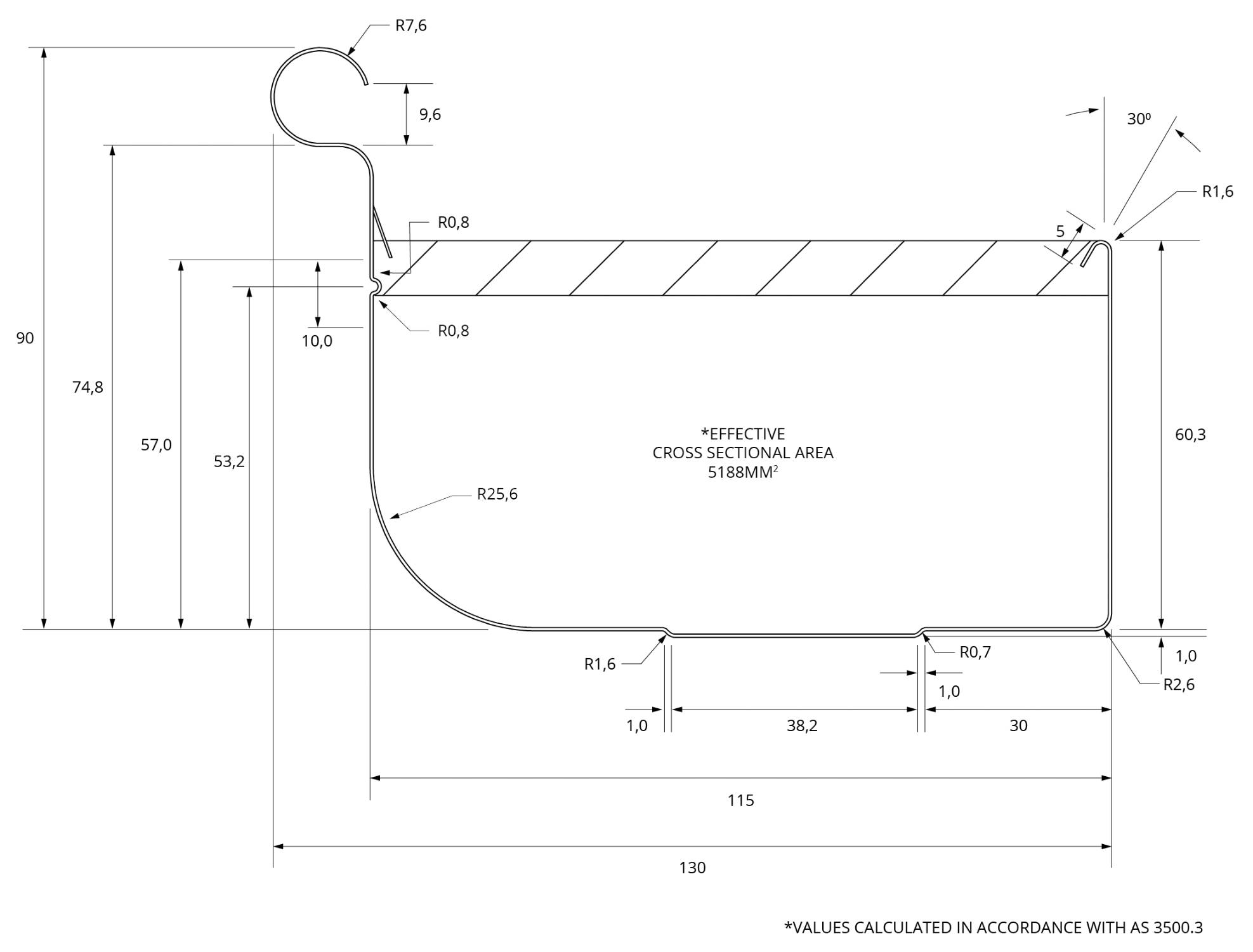
Size (nominal width)

115 mm.

Manufacturer guidance

Refers to effective gutter width.

Thickness or gauge

-

Cross sectional area of gutter ≤ 10 000 mm²

0.50 mm.

Corrosion protection

-

Class

AM125.

Finish

Natural.

Colour

Standard ZINCALUME steel colour.

CrossSectionArea

5188 mm².

Manufacturer guidance

Refers to Effective Cross Sectional Area (ECA). ECA is 10 mm below the overflow level.

Height

90 mm with overflow level at 60 mm.

Length

-

Manufacturer guidance

Profiles are supplied custom cut to length to suit project requirements. Transportation limits apply.

Material

ZINCALUME® steel.

Brackets

Hi-Front GP Bracket.
Suspension Clips.
J Strap.

Manufacturer guidance

Brackets or straps should be spaced at 1.2 m centres.

Accessories

Internal cast corners.
External cast corners.

Sustainability data

Country of material origin

Australia

Country of product manufacture

Australia

Recyclability

100% Recyclable.

Recycled content

As defined in clause 7.8 of BS EN ISO 14021

20 %

Manufacturer guidance

Maximum value only. Product is made with 15–20% recycled content.

Similar products from Fielders

115 Hi Ten O.G. (Steel)

115 Hi Ten O.G. (Steel)

125 D Gutter (COLORBOND® Steel)

125 D Gutter (COLORBOND® Steel)

125 Quarter Round Gutter (COLORBOND® Steel)

125 Quarter Round Gutter (COLORBOND® Steel)

150 Half Round Gutter (COLORBOND® Steel)

150 Half Round Gutter (COLORBOND® Steel)

150 Halfline® Gutter (COLORBOND® Steel)

150 Halfline® Gutter (COLORBOND® Steel)

150 Hi Front Quad Gutter (COLORBOND® Steel)

150 Hi Front Quad Gutter (COLORBOND® Steel)

Ainsworth O.G. (COLORBOND® Steel)

Ainsworth O.G. (COLORBOND® Steel)

Buster Gutter (Steel)

Buster Gutter (Steel)

Fascia Gutter (COLORBOND® Steel)

Fascia Gutter (COLORBOND® Steel)

Longline Gutter (COLORBOND® Steel)

Longline Gutter (COLORBOND® Steel)